For Sale

$415,000

9 Indiana Avenue, Wasaga Beach, ON L0L 2P0

River Rd. W to Zoo Park Rd. to Golf Course Rd to Park Pl Blvd continue straight to Indiana OR Hwy 26 to Klondike Park Rd to Golf Course Rd / Park Pl Blvd

2 Beds 2 Baths

Remarks

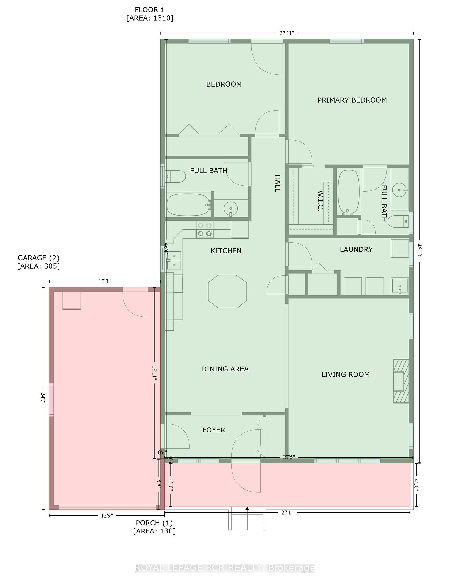
Imagine a quiet, peaceful life in Park Place, a leased land Adult Community in Wasaga Beach. A short drive to the world's longest freshwater beach; golfing; trail systems, shopping, restaurants and more! This beautiful Tobermory model is a popular floorplan that offers 1316 sqft of living space. WOW NEW PAVED DRIVEWAY! Adds a beautiful front curb appeal. The large entryway features inside access to the attached garage. Enjoy new durable VINYL PLANK FLOORS which are water resistant and is a versatile flooring product which replaced the old floors in the entrance, dining/kitchen and living rooms. Enjoy the cathedral ceilings that welcome you into the heart of the home. The living/family room beside the kitchen/dining area gives family gatherings enough space for everyone to be together. The main body of the house (Kitchen/dining/living room & hall) have been freshly painted with a neutral colour making the space bright and refreshed. Ensuite laundry is conveniently located near the kitchen. The Primary Bedroom Suite features a large Walk-in closet, and a 4-piece ensuite. The second bedroom has a walkout to the backyard which is awaiting your personal touch. Park Place is a gated adult (age 55+) community on 115 acres of forest & fields, water & wilderness in Wasaga Beach. Amenities are abundant for the residents in this community which include a 12,000 sq. ft. recreation complex, indoor saltwater pool, games rooms, library, gym, wood working shop, billiards, library, fitness center, horseshoes, bocce ball, shuffleboard, as well as many organized clubs, events & activities! Here is the break down of fees for prospective tenants. Landlease/Rent ($800.00) + Property Tax Site ($37.84) & Structure ($134.24.) = $972.08/month (*Plus Water/Sewer: Billed Quarterly) . Come and see what this friendly, vibrant 55+ community has to offer!

Inclusions:

all current appliances "as is", light fixtures, window coverings/shutters, garden shed, garage door opener

Exclusions:

small shed backing on house, hanging light over chair in living room, 2 wall scones on either side of fireplace

Property Summary

  • Neighbourhood:
  • Annual Tax Amount: $0.00
  • Lot Frontage: 0 Feet
  • Lot Depth: 0 Feet
  • No. of Parking Spaces: 3
  • Floor Space (approx): 1100-1500 Square Feet
  • Bedrooms: 2
  • Bathrooms (Total): 2

Property Features:

  • Approximate Age:
    16-30
  • Architectural Style:
    Bungalow
  • Basement:
    Crawl Space
  • Construction Materials:
    Vinyl Siding
  • Cooling:
    Central Air
  • Exterior Features:
    Recreational Area , Porch , Year Round Living
  • Fireplace Features:
    Family Room , Natural Gas
  • Foundation Details:
    Poured Concrete
  • Garage Type:
    Attached
  • Heat Source:
    Gas
  • Heat Type:
    Forced Air
  • Interior Features:
    Water Heater Owned , Ventilation System , Primary Bedroom - Main Floor
  • Lot Shape:
    Rectangular
  • Other Structures:
    []
  • Parking Features:
    Private Double
  • Pool Features:
    [] , Indoor , []
  • Property Features:
    Rec./Commun.Centre
  • Roof:
    Shingles , Asphalt Shingle
  • Security Features:
    Smoke Detector , Carbon Monoxide Detectors
  • Sewer:
    Sewer
  • Topography:
    Flat
  • Water:
    Municipal

Rooms

  • Foyer:
    Level: Main Level 3.29 m x 1.52 m
  • Dining:
    Level: Main Level 3.99 m x 3.59 m
  • Kitchen:
    Level: Main Level 3.99 m x 2.96 m
  • Living:
    Level: Main Level 3.99 m x 5.49 m
  • Bedroom:
    Level: Main Level 3.99 m x 3.05 m
  • Master Bedroom:
    Level: Main Level 3.99 m x 4.15 m
  • Laundry:
    Level: Main Level 3.99 m x 1.52 m

Office Listing: 

Kimberley Husson Sales Representative  ,  Derek Favret - Sales Representative

Lifestyle
Neighbourhood Info
Dorothy Bassakyros

Dorothy Bassakyros

Sales Representative

Phone:  905.836.1212

Fax:  905.836.0820

logo

Royal LePage RCR Realty, Brokerage (Independently owned and operated)

17360 YONGE STREET
NEWMARKET,  ON L3Y7R6

Get More Info

Get More Info

Book a tour